Rif: IMMO-124016491
BRUSSON
AOSTA
BRUSSON Vendesi TRILOCALE completamente RISTRUTTURATO con consegna giugno 2026
Il trilocale si trova al Piano Terra di una piccola palazzina già oggetto di ristrutturazione nelle sue
parti comuni ( tinteggiatura facciata e sostituzione caldaia condominiale ) nell' anno 2023.
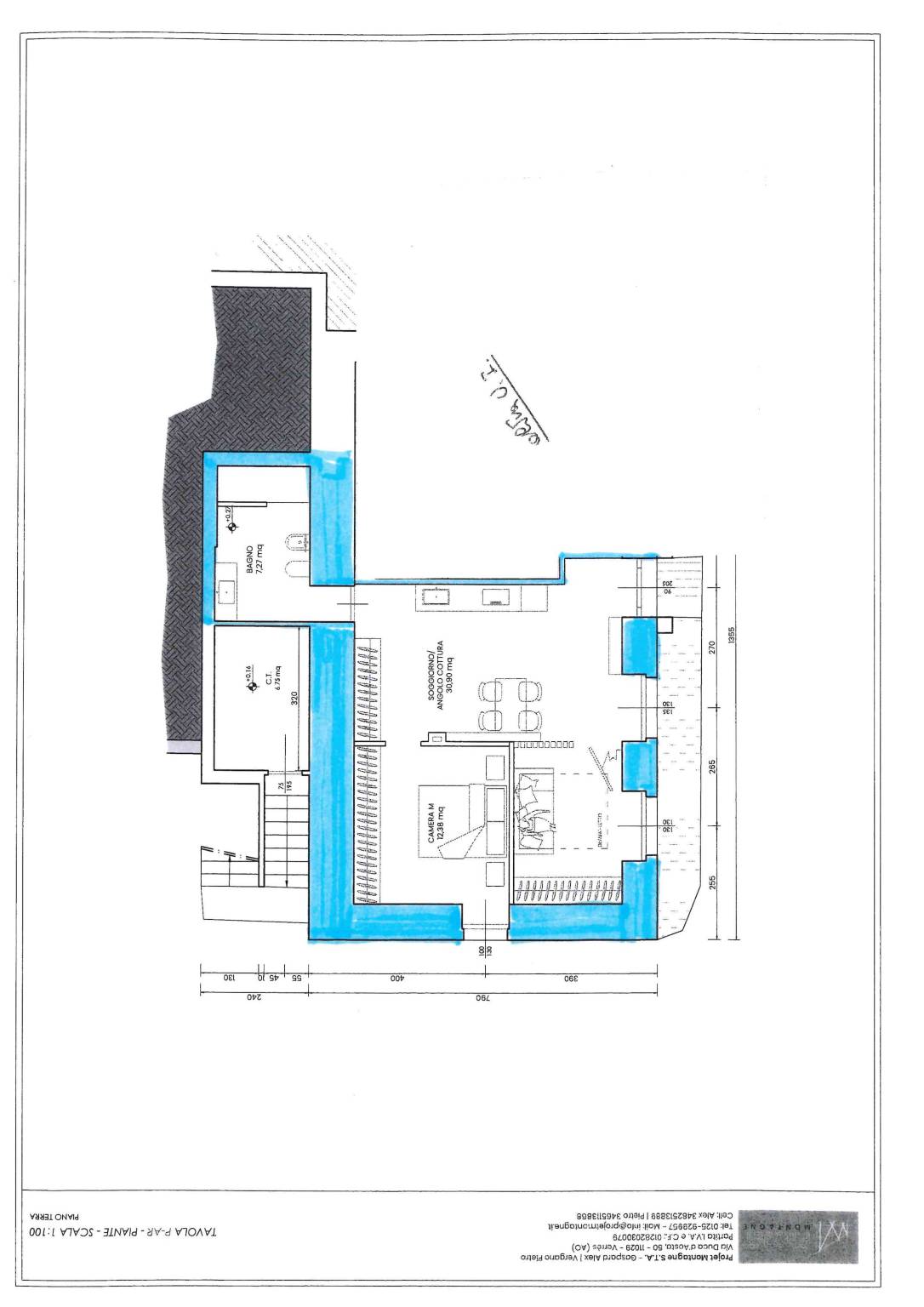
Il trilocale può assumere una diversa distribuzione interna come ben visibile dalle planimetrie
allegate: la prima privilegia la zona giorno con possibilità di ricavare la seconda camera
“all'occorrenza” mediante la presenza di un divano-letto, l'altra ipotesi è più classica con la
realizzazione di due distinte camere da letto.
L'odierno intervento- costituisce il completamento della trasformazione dell'intera palazzina in
complesso residenziale con la trasformazione del Piano Terra dove per anni si è svolta attività di
bar-ristorante.
La posizione è centralissima, comoda a tutti i servizi e costituisce un ottimo “punto di appoggio” sia
per chi desidera effettuare belle passeggiate in una natura incontaminata sia per gli amanti delle
piste da sci.
L'unità immobiliare verrà completamente ristrutturata e consegnata finita “chiavi in mano”, dotata
di nuovi impianti idro-termo- sanitario ed elettrico, con possibilità per l'acquirente finale di
scegliere -presso i fornitori indicati dall'impresa- la pavimentazione, i sanitari e la rubinetteria del
bagno, la porta interna, il tutto per personalizzare l'immobile secondo le aspettative del cliente.
I render posti in visione, sono solo illustrativi e non costituiscono, a nessun titolo, elementi contrattuali.
Il trilocale si trova al Piano Terra di una piccola palazzina già oggetto di ristrutturazione nelle sue
parti comuni ( tinteggiatura facciata e sostituzione caldaia condominiale ) nell' anno 2023.
Il trilocale può assumere una diversa distribuzione interna come ben visibile dalle planimetrie
allegate: la prima privilegia la zona giorno con possibilità di ricavare la seconda camera
“all'occorrenza” mediante la presenza di un divano-letto, l'altra ipotesi è più classica con la
realizzazione di due distinte camere da letto.
L'odierno intervento- costituisce il completamento della trasformazione dell'intera palazzina in
complesso residenziale con la trasformazione del Piano Terra dove per anni si è svolta attività di
bar-ristorante.
La posizione è centralissima, comoda a tutti i servizi e costituisce un ottimo “punto di appoggio” sia
per chi desidera effettuare belle passeggiate in una natura incontaminata sia per gli amanti delle
piste da sci.
L'unità immobiliare verrà completamente ristrutturata e consegnata finita “chiavi in mano”, dotata
di nuovi impianti idro-termo- sanitario ed elettrico, con possibilità per l'acquirente finale di
scegliere -presso i fornitori indicati dall'impresa- la pavimentazione, i sanitari e la rubinetteria del
bagno, la porta interna, il tutto per personalizzare l'immobile secondo le aspettative del cliente.
I render posti in visione, sono solo illustrativi e non costituiscono, a nessun titolo, elementi contrattuali.
Consistenze
| Descrizione | Superficie | Sup. comm. |
|---|---|---|
| Principali | ||
| Immobile - piano terra | 53 Mq | 53 Mqc |
| Totale | 53 Mqc | |







